• Technical Training

    Actuation systems

    Actuation systems
    Line of Business
    VTR
    Product Family
    CLUTCH HYDRAULIC RELEASE MECHANISM | CLUTCHES | CLUTCHES
    Product Name
    CLUTCH RELEASE CYLINDERS (C.R.C.) | CLUTCH MASTER CYLINDERS (C.M.C.) | CLUTCH ACTUATION SYSTEM | CLUTCH ACTUATION SYSTEM
    Brands
    Vehicle Type
    PC
    Vehicle Designation
    All Vehicles

    Technical Information

    Complete the steps to fit the part into the vehicle correctly
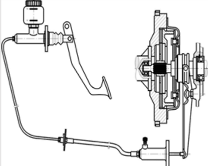
    Semi hydraulic clutch actuator

    Hydraulic clutch actuator

    cpx

    Hydro-pneumatic Clutch Actuation

    Get the Latest: Subscribe to Our Newsletter

    By signing up your email address above, you agree to receive electronically our commercial offers. You can unsubscribe at any time by changing the settings on your account and through unsubscribe links.

    We use reCAPTCHA to prevent automated abuse of our forms. Your use of this form is subject to Google's Privacy Policy and Terms of Service.